令和6年は、元旦に発生した「能登地震」により、耐震診断・補強プラン作成の補助事業、並びに、耐震改修工事補助事業でてんてこ舞いな1年で終わりそうです。でも、地震で倒壊を不安視されるお客様のお気持ちを考えると、できるだけ早期にその悩みを解消して差し上げなければという思いもあります。
ですが、補助事業は単年度事業ですので、予算成立で執行開始からその年度内に事業を終えることが前提ですので、本年度では元旦に発生したということもあって、前年度の事業期間であったのと、その事業期間終了を待たずに予算消化されてしまったということもあって、新たに診断や補強プラン作成を行うのが4月1日以降からという形になりました。
福井県や各市町では、ある程度の需要増は見込んでいたものの、実際には想定をはるかに超える希望者がおられました。特に福井市では需要増に対して「抽選制」を採用することになり、令和6年11月26日現在、診断及び補強プラン作成の抽選申込者数が423組と、すさまじい数の抽選申込者数となっております。このうち、令和6年度予算(当初予算、補正予算)では、推定で200組程度の枠しか確保できていない状況なのと、診断士不足による対応の遅れもあり、ご希望される方すべての診断と補強プラン作成を終えるには、来年度いっぱいかかっても無理ではないか?と思われるというのが現場に臨んでいるものとしての意見です。
そんな中、弊社には、「診断と補強プラン作成の抽選など待っていられないので、補強工事をたのむ!」というご依頼やご相談が夏ごろから多くなってきました。診断と補強プラン作成については、200軒程度の予算があるものの、改修となりますと、その10分の1にも満たない予算確保しかできていない状況ですので、こちらも「補助金争奪戦」となっていました。ですが、弊社外での状況は、結果として補助金申請を行う前段階で、予算や工期などが見合わなく断念するケースも多かったようです。補助金を統括する福井市では、一応、窓口レベルで「見込み数」を把握することに努めているようですが、そも見込み数もこのようなドタキャンがありますと、せっかく確保した予算が浮いてしまうわけですので、我々業者としても、できるだけそういったことがないようにお客様と打ち合わせをしますが、今回は、おそらく、本年度最後の対応となる耐震改修補助事業に、他社のドタキャンによって空いた1枠に滑り込むことができたということもあってご対応させていただきました。

これが、「交付決定通知書」といわれるものです。この交付決定通知書が発行された日付以降でなければ着工はできません。交付決定通知書が発行されるためには、現況状況、診断結果、補強プラン等の計算の妥当性、さらに施工計画として設計図書、数量表なども必要になりますので、それらの準備を行うだけで1か月程度の時間が必要ですし、役所での審査期間も短く見積もっても2週間はかかります。また、補助事業ですので、設計内容の評価だけではなく、公費の財務上の決済も待たなければなりませんので、おおよそ1か月は見なければなりません。もちろん、書類関係の整備になれていなければ、追加で求められる資料もありますので、正直、初めてこの補助事業で補助金を取得するという業者さんはハードルが高いかもしれません。
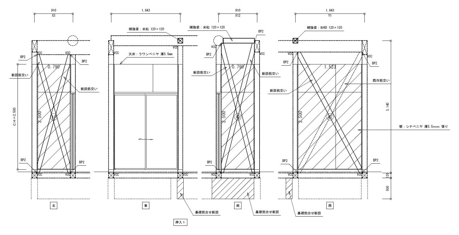
また、補助金の査定において重要なのは、当初出されていた数量が、確実に現場で使用され、取り付けられているか?という確認ができる資料が必要になります。いわゆる施工監理写真というものです。例えば、柱脚、柱頭につける金物が、当初計画されていた仕様で、かつ、数量がピッタリあっているか?というものです。

例えば、上の画像のように、改修する壁についての改修内容を図示し、それに基づいて工事がなされたという証として、以下のような施工状況の写真記録が必要になります。



さらに、それが当初計画の数量と合致している必要があるわけですが、このとき、たまたま、写真の撮り忘れなどがありますと、せっかく施工完了していても「破壊して撮影する必要がある」わけです。補助金を使うということは、税金を使うということですので、その運用には「厳格さ」が求められます。もちろん、役所側では年度末の「会計監査」の対象となりますので、しっかり書類、写真は整っている必要があるわけです。
これらのことが面倒だと考える業者は、おそらく耐震改修などは請けません。彼らは、「古い建物など耐震性をアップさせても被害は免れることはできません」などという言葉で、せっかくリフォームのチャンスで壁や天井を解体するにも関わらず、金物一枚、耐力壁の補強1か所をするような提案はしません。また、なんの計算根拠もなく、お客様の手前、筋交いを数本増やして耐震性をアップさせた「フリ」をするような業者もいます。
国土交通省は11月1日、「令和6年能登半島地震における建築物構造被害の原因分析を行う委員会」における中間取りまとめを公表しましたが、その調査報告書にも以下の記載がございます。

このように、倒壊・崩壊した建物がなかったということが報告があります。この倒壊・崩壊しなかったというのは「人命損失」はもちろん、道路、電気等の「社会インフラの寸断原因」にもなります。住宅などの建物を持つという意味は、決して、個人的な資産形成というだけではなく、社会的責任があるということなのです。だからこそ、税金を投入して、補強工事を行うことを国や自治体がすすめているわけです。
また、倒壊する建物が増えれば、その建物を除去する必要があります。建っている建物を壊す場合には、廃棄物を分別して解体していくことも容易にできますが、倒壊し残骸となってしまったものを分別廃棄していくには相当な手間がかかります。ですが、その倒壊建物が道路をふさいでいれば、迅速に撤去しなければなりません。方法は一つで、分別せずに「混合廃棄物」として一気に除去するしかありません。それが費用的にどのくらいなのかは、普通に解体する何倍もの経費がかかるわけです。それを「公費解体」といって税金を投入して対応するのでは、負担が増えていくばかりになります。だからこそ耐震改修が必要であるといえるわけです。
おそらく来年度も相当数の改修のご依頼が入ってくると想定しています。現段階でもすでに、来年度予算が確定し、募集を開始したら即日に計画を提出できるようにということでご依頼をいただいている軒数も多数あります。ご相談は補助金が締め切られていても随時お請けしております。お気軽にご相談ください。